Mobile: 507.210.9642
View More Properties
Contact Me
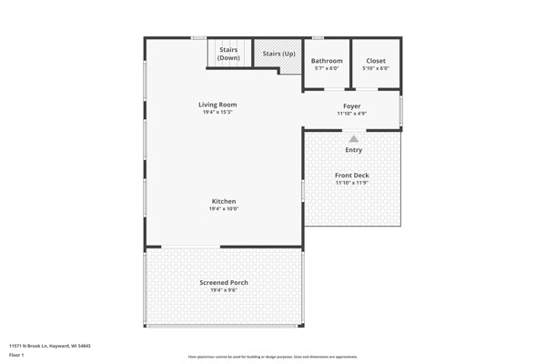
11571 Brook Ln Hayward, Wisconsin 54843
* Required
Please reconsider and re-enable Javascript on this website for a better viewing experience.